Kalahari 01
Kalahari 02
Kalahari 03
Kalahari 04
Kalahari 05
Kalahari 06
Kalahari 07
Kalahari 08

Kalahari Tree of Life

Location

40 West 116th Street
New York, NY

Project Scope

Multifamily

Partner-In-Charge

David E. Gross AIA

Status

Completed

Honors

  • Silver Brick in Architecture Award
  • Hottest Green Project for 2008 - Green Matters Magazine
  • Design Excellence Award for Green Category - Multi - Housing News
  • Green Building in 2007 Development NY - Residential Magazine
  • ULI/J. Ronald Terwilliger Workforce Housing Models of Excellence Awards

Designed to Serve the Environment and the Community

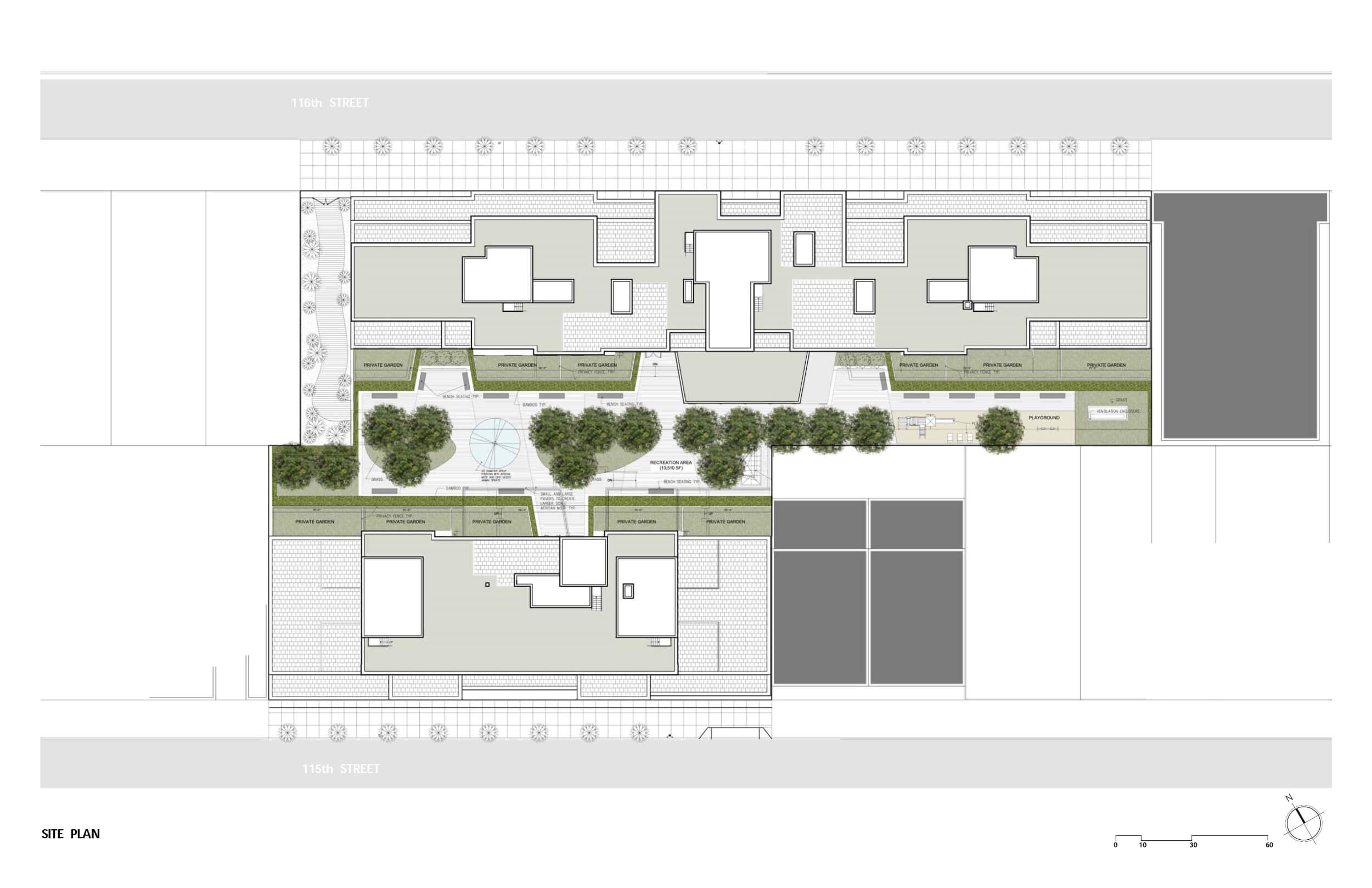
Kalahari is composed of two 12-story mixed-use buildings between Lenox and Fifth Avenues totaling 425,000 square feet. The Kalahari earned LEED Silver Certification and was the largest residential Green Building in NY at the time of its completion. Applauded for its design, energy efficiency, and catering to families of various incomes, this development has 250 one to three bedroom units and several duplexes. Residents have access to a green roof terrace, fully equipped gym, landscaped courtyard, meeting rooms, concierge, art exhibit, and music practice rooms.

Tree of Life Using 35% less energy than levels set by New York State Energy Code standards, Kalahari is one of Harlem’s greenest residences. It has been featured as the “Hottest Green Project for 2008” in Green Matters Magazine and the “Top Green Building in 2007” in Development NY Magazine.

The developers named the building after the Kalahari desert in Southwestern Africa. The theme of the building is carried out in the facade which reflects the colors and patterns of tribal cultures of the Kalahari region dwellings. The decorative motif for the common spaces are cultural symbols with artistic elements.

More Projects

88 Morningside

+Art

The Rennie

One Morningside Park